ミセカリ|飲食店の物件、居抜き、賃貸の店舗探しのオンライン「不動産」
居抜き
☆★成約済み(申込不可)★☆クオール恵比寿
JR山手線【恵比寿駅】徒歩4分
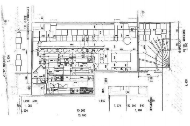
約21.61坪
- 賃料
- 750,000円(税抜き)
- 管理費
- 0円
- 保証金
- 賃料の10カ月分
- 償却
- 賃料の2カ月分
- 礼金
- 賃料の2カ月分
- 契約期間
- 定期借家契約6年
- 賃料
- 750,000円(税抜き)
- 管理費
- 0円
- 保証金
- 賃料の10カ月分
- 償却
- 賃料の2カ月分
- 礼金
- 賃料の2カ月分
- 契約期間
- 定期借家契約 6年
- 更新料
- 新賃料の1カ月分
- 面積
- 約21.61坪
- 店舗資産譲渡料
- 1,000,000円(税抜き)
- 備考
- ※その他の条件に付きましては 、担当者迄お気軽に お問い合わせ下さいませ。
※掲載内容と異なる場合は現況優先とさせて頂きます 。
※付帯条件や別途料金等が発生する場合もありますのでご確認ください。





- アピールポイント!
- ☆★成約済み(申込不可)★☆
恵比寿のビジネスタワーの真裏、渋谷川沿いの路面居抜き店舗です!
同じような業態だと初期費用も抑えられ即営業可能です。
住宅街も多いため常連客も獲得しやすい店舗となります。
飲食店以外もお問い合わせお待ちしてます!
先ずは内見から、、、
是非ご連絡お待ちしております。
-------------------
25坪以下の"居抜き""店舗物件""賃貸マンション""分譲マンション"
オンラインで物件探しなら
"ミセカリ"で♪
【ミセカリ】
東京都目黒区目黒1丁目-24 オリックスビル2F
03-6417-9236
-------------------
![]()
物件へのお問い合わせ






































