ミセカリ|飲食店の物件、居抜き、賃貸の店舗探しのオンライン「不動産」
物件番号:2025.09.26.11:17
居抜き
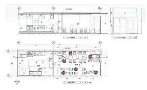
パサージュ阿佐ヶ⾕ 1階1-K店舗
JR中央本線【阿佐ケ⾕】徒歩1分
約14坪(46.64㎡)
- 住所
- 東京都杉並区阿佐谷北2丁目13−2
- 坪数
- 約14坪(46.64㎡)
- 賃料
- 572,000円(税込)
- 管理費等
- 37,400円/⽉
- 礼金
- 賃料の2ヶ月
- 保証金
- 賃料の10ヶ月
- 償却
- 解約時30%
- 構造・規模
- SRC 8階建 地下1階/1階部分
- 契約期間
- 普通賃貸借契約3年
- 更新料
- 新賃料の1.5か月
物件番号:2025.09.26.11:17
- 現況
- 使用中
- 引渡可能時期
- 相談
- 備考
- ※1 家賃保証会社加入要
※2 指定火災保険加入要
お問い合わせ時期によっては、ご案内できない場合がございます。ご了承ください。




物件の周辺地図
- アピールポイント!
- JR中央本線【阿佐ケ⾕】徒歩1分
阿佐ヶ⾕駅⽬の前 複合施設内1階で集客⼒◎
早い者勝ちです!!
是非内見お待ちしております。
【ミセカリ】
東京都目黒区目黒1丁目-24 オリックスビル2F
03-6417-9236
![]()
物件へのお問い合わせ





































