ミセカリ|飲食店の物件、居抜き、賃貸の店舗探しのオンライン「不動産」
物件番号:2025.11.05.16:26
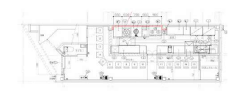
居抜き
⼩川町細野ビル
JR総武・中央緩⾏線 御茶ノ⽔ 徒歩5分
約14坪(46.39㎡)
- 住所
- 東京都千代⽥区神⽥⼩川町3丁⽬ 22
- 坪数
- 約14坪(46.39㎡)
- 構造
- 鉄⾻造 2階建/1階部分
- 賃料
- 632,500円(税込)
- 礼金
- 賃料の2ヶ月
- 保証金
- 賃料の10ヶ月
- 契約期間
- 普通賃貸借契約5年
- 管理費
- 32,230円/⽉
- 造作価格
- 385万円
物件番号:2025.11.05.16:26
- 現況
- 使用中
- 引渡可能時期
- 相談
- 備考
- ※1 家賃保証会社加入要
※2 指定火災保険加入要
お問い合わせ時期によっては、ご案内できない場合がございます。ご了承ください。




物件の周辺地図
- アピールポイント!
- JR総武・中央緩⾏線 御茶ノ⽔ 徒歩5分
1階路⾯のラーメン店居抜き物件★
早い者勝ちです!!
是非内見お待ちしております。
【ミセカリ】
東京都目黒区目黒1丁目-24 オリックスビル2F
03-6417-9236
![]()
物件へのお問い合わせ





































