ミセカリ|飲食店の物件、居抜き、賃貸の店舗探しのオンライン「不動産」
物件番号:2025.10.27.15:00
居抜き
武蔵五⽇市蔵
JR五⽇市線 【武蔵五⽇市】 徒歩12分
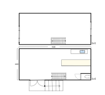
約25坪(82.64㎡)
- 住所
- 東京都あきる野市舘⾕ 86
- 坪数
- 約25坪(82.64㎡)
- 賃料
- 165,000円(税込)
- 礼金
- 賃料の1ヵ月
- 保証金
- 3ヶ月
- 構造
- ⽊造 2階建/複数階 1階〜2階部分
- 更新料
- 新賃料の1ヵ月
- 契約年数
- 普通賃貸借契約3年
物件番号:2025.10.27.15:00
- 現況
- 空
- 引渡可能時期
- 即時
- 備考
- ※1 家賃保証会社加入要
※2 指定火災保険加入要
お問い合わせ時期によっては、ご案内できない場合がございます。ご了承ください。




物件の周辺地図
- アピールポイント!
- JR五⽇市線 【武蔵五⽇市】 徒歩12分
蔵をリノベーションしたお洒落な空間★
早い者勝ちです!!
是非内見お待ちしております。
【ミセカリ】
東京都目黒区目黒1丁目-24 オリックスビル2F
03-6417-9236
![]()
物件へのお問い合わせ





































