ミセカリ|飲食店の物件、居抜き、賃貸の店舗探しのオンライン「不動産」
居抜き
★成約済★非公開物件
★成約済★根津駅 徒歩6分
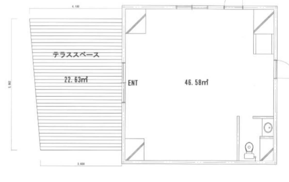
★成約済★店舗14.09坪 テラス6.85坪 合計20.93
- 賃料
- 368,544円(税込)
- 管理費
- 22,000円(税込)
- 礼金
- 賃料の2か月
- 保証金
- 賃料の6ヶ月
- 賃料
- 368,544円(税込)
- 管理費
- 22,000円(税込)
- 礼金
- 賃料の2か月
- 保証金
- 賃料の6ヶ月
- 保証金償却
- 解約時、賃料の1か月
- 契約期間
- 3年間
- 面積
- 店舗14.09坪 テラス6.85坪 合計20.93
- アクセス
- 『千駄木駅』、『根津駅』徒歩6分
- 備考
- ※その他の条件に付きましては 、担当者迄お気軽に お問い合わせ下さいませ。
※掲載内容と異なる場合は現況優先とさせて頂きます 。
※付帯条件や別途料金等が発生する場合もありますのでご確認ください。


物件の周辺地図
- アピールポイント!
- 『千駄木駅』、『根津駅』徒歩6分!
希少な1F路面、テラス付き!
-------------------
25坪以下の"居抜き""店舗物件""賃貸マンション""分譲マンション"
オンラインで物件探しなら
"ミセカリ"で♪
【ミセカリ】
東京都目黒区目黒1丁目-24 オリックスビル2F
03-6417-9236
-------------------
![]()
物件へのお問い合わせ



































