お気軽にご相談ください!

居抜き

★成約済★

★成約済★

★成約済★

賃料
450,000円(税抜き)
管理費
0円
保証金
賃料の10カ月分
償却
解約時、賃料の2カ月分
礼金
賃料の2か月分
契約期間
定期借家契約 5年
賃料
450,000円(税抜き)
管理費
0円
保証金
賃料の10カ月分
償却
解約時、賃料の2カ月分
礼金
賃料の2か月分
契約期間
定期借家契約 5年
更新料
相談
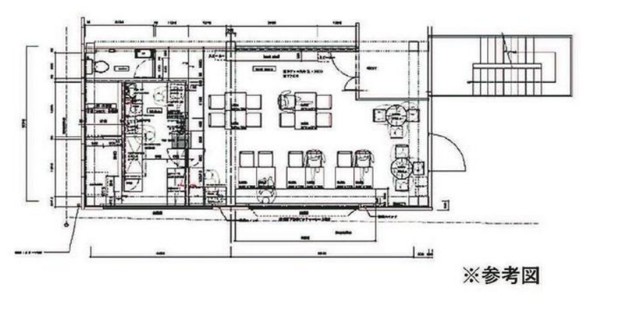
面積
約17.15坪
店舗資産譲渡料
300万円(税抜き)
備考
※その他の条件に付きましては 、担当者迄お気軽に お問い合わせ下さいませ。
※掲載内容と異なる場合は現況優先とさせて頂きます 。
※付帯条件や別途料金等が発生する場合もありますのでご確認ください。

電話でお問い合わせ03-6747-9357【受付時間】平日10:00~19:00

  • Line
  • メールでのご予約
Photo
Photo
Photo
アピールポイント!
表参道駅から徒歩6分の居抜き物件が出ました!
青山通りからも近くおしゃれな美内装の物件です
隠れ家レストランからゴーストキッチンまで幅広い業態が可能!
先ずは内見から、、、
是非ご連絡お待ちしております。
-------------------
25坪以下の"居抜き""店舗物件""賃貸マンション""分譲マンション"
オンラインで物件探しなら
 "ミセカリ"で♪

【ミセカリ】
東京都目黒区目黒1丁目-24 オリックスビル2F
03-6417-9236
-------------------

Icon

物件へのお問い合わせ

電話でお問い合わせ03-6747-9357【受付時間】平日10:00~19:00

  • Line
  • メールでのご予約
最上部へ