ミセカリ|飲食店の物件、居抜き、賃貸の店舗探しのオンライン「不動産」
物件番号:【制約済み】2021.05.13.15:22
居抜き
【制約済み】葛飾区亀有3丁目テナント102・201
【制約済み】常磐媛行線【亀有駅】徒歩4分
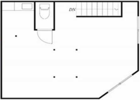
【制約済み】102:約12.55坪 201:10.68坪
- 賃料
- 102:165,000円(税込)
201:104,500円(税込)
- 敷金
- 賃料の2ヶ月分
- 礼金
- 賃料の1ヶ月分(税抜)
- 契約年数
- 定期借家契約 5年
- 再契約
- 賃料1ヶ月分(税抜)
- 面積
- 102:約12.55坪 201:10.68坪
物件番号:【制約済み】2021.05.13.15:22
- 賃料
- 102:165,000円(税込)
201:104,500円(税込)
- 敷金
- 賃料の2ヶ月分
- 礼金
- 賃料の1ヶ月分(税抜)
- 契約年数
- 定期借家契約 5年
- 再契約
- 賃料1ヶ月分(税抜)
- 面積
- 102:約12.55坪 201:10.68坪
- アクセス
- 常磐媛行線【亀有駅】徒歩4分
- 備考
- ※その他の条件に付きましては 、担当者迄お気軽に お問い合わせ下さいませ。
※掲載内容と異なる場合は現況優先とさせて頂きます 。
※付帯条件や別途料金等が発生する場合もありますのでご確認ください。











- 【制約済み】アピールポイント!
- 【制約済み】常磐媛行線【亀有駅】徒歩4分 の物件が出ました!
駅からも徒歩圏内です★
早い者勝ちです!!
是非内見お待ちしております。
-------------------
25坪以下の"居抜き""店舗物件""賃貸マンション""分譲マンション"
オンラインで物件探しなら
"ミセカリ"で♪
【ミセカリ】
東京都目黒区目黒1丁目-24 オリックスビル2F
03-6417-9236
-------------------
![]()
物件へのお問い合わせ












































