ミセカリ|飲食店の物件、居抜き、賃貸の店舗探しのオンライン「不動産」
居抜き
★成約済★
★成約済★
★成約済★
- 賃料
- 13.2万円(税抜)
- 保証金
- 1ヶ月
- 礼金
- 3ヶ月
- 償却
- なし
- 更新料
- なし
- 契約年数
- 2年
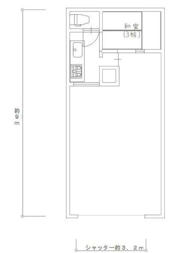
- 面積
- 約10.89坪
- アクセス
- 大阪メトロ谷町線 阿倍野駅 徒歩7分
- 現況
- 空き
- 備考
- ※その他の条件に付きましては 、担当者迄お気軽に お問い合わせ下さいませ。
※掲載内容と異なる場合は現況優先とさせて頂きます 。
※付帯条件や別途料金等が発生する場合もありますのでご確認ください。




- アピールポイント!
- 大阪はあべのキューズモール至近の物件のご紹介です。
あべのマルシェ商店街で募集区画が出ました!!
人気エリアの希少面積ですので、多数の引き合いが予想されます!!
上記でご検討の方は、ご連絡お待ちしております。
-------------------
25坪以下の"居抜き""店舗物件""賃貸マンション""分譲マンション"
オンラインで物件探しなら
"ミセカリ"で♪
【ミセカリ】
東京都目黒区目黒1丁目-24 オリックスビル2F
03-6417-9236
-------------------
![]()
物件へのお問い合わせ





































