お気軽にご相談ください!

居抜き

★成約済★伏見桃山 貸店舗

★成約済★京阪電鉄本線 伏見桃山駅 徒歩4分

★成約済★73.2坪

賃料
88万円(税抜)
保証金
3ヶ月
礼金
なし
償却
解約時50%  その他償却条件:5年未満50%、10年未満80%、10年以上100%返還
更新料
なし
契約年数
3年
面積
73.2坪
アクセス
京阪電鉄本線 伏見桃山駅 徒歩4分
現況
営業中
備考
※その他の条件に付きましては 、担当者迄お気軽に お問い合わせ下さいませ。
※掲載内容と異なる場合は現況優先とさせて頂きます 。
※付帯条件や別途料金等が発生する場合もありますのでご確認

電話でお問い合わせ03-6747-9357【受付時間】平日10:00~19:00

  • Line
  • メールでのご予約
Photo
Photo
Photo
アピールポイント!
飲食店の居抜きとなります!!
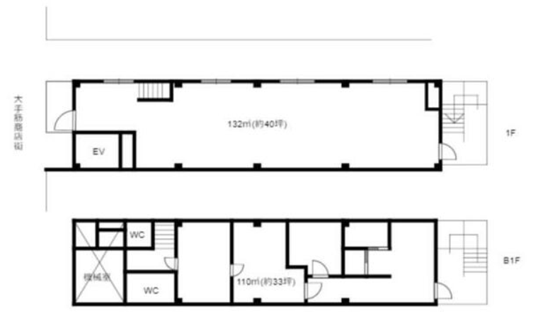
1階営業スペース、地下にはトイレ・倉庫・更衣室があります♪
1階のみで約40坪の物件です!!
詳しい情報はお問合せください!!
-------------------
25坪以下の"居抜き""店舗物件""賃貸マンション""分譲マンション"
オンラインで物件探しなら
 "ミセカリ"で♪

【ミセカリ】
東京都目黒区目黒1丁目-24 オリックスビル2F
03-6417-9236
-------------------

Icon

物件へのお問い合わせ

電話でお問い合わせ03-6747-9357【受付時間】平日10:00~19:00

  • Line
  • メールでのご予約
最上部へ