ミセカリ|飲食店の物件、居抜き、賃貸の店舗探しのオンライン「不動産」
居抜き
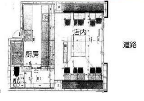
ベーネ西荻1階
中央線/総武・東西線【西荻窪】北口徒歩1分
13.11坪(43.34㎡ )
- 住所
- 東京都杉並区西荻北3-13-18
- 坪数
- 13.11坪(43.34㎡ )
- 賃料
- 360,525円(税込)
- 構造
- 木造3階建て
- 保証金
- 賃料の10ヶ月分
- 契約期間
- 普通賃貸借契約3年
- 礼金
- 賃料の2ヶ月分
- 更新料
- 新賃料の1ヶ月分
- 管理費
- 月額 19,800円
- 造作譲渡
- 300万(相談)
- 引渡可能時期
- 2025年12月上旬
- 備考
- ※1 家賃保証会社加入要
※2 指定火災保険加入要
お問い合わせ時期によっては、ご案内できない場合がございます。ご了承ください。





物件の周辺地図
- アピールポイント!
- 中央線/総武・東西線【西荻窪】北口徒歩
洋菓子店居抜き★
早い者勝ちです!!
是非内見お待ちしております。
【ミセカリ】
東京都目黒区目黒1丁目-24 オリックスビル2F
03-6417-9236
![]()
物件へのお問い合わせ






































