ミセカリ|飲食店の物件、居抜き、賃貸の店舗探しのオンライン「不動産」
居抜き
★成約済★梅田 貸店舗
★成約済★谷町線『東梅田駅』徒歩6分
★成約済★
- 賃料
- 650,000円
- 共益費
- 10,000円
- 看板代
- 20,000円
- 保証金
- 8,000,000円
- 賃料
- 650,000円
- 共益費
- 10,000円
- 看板代
- 20,000円
- 保証金
- 8,000,000円(償却は要確認)
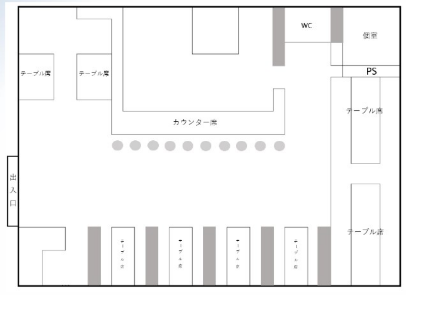
- 面積
- 約20坪
- 所在階
- 1階
- アクセス
- 谷町線『東梅田駅』徒歩6分
- 備考
- ※その他の条件に付きましては 、担当者迄お気軽に お問い合わせ下さいませ。
※掲載内容と異なる場合は現況優先とさせて頂きます 。
※付帯条件や別途料金等が発生する場合もありますのでご確認ください。


- アピールポイント!
- 東梅田駅、梅田駅徒歩圏内の好立地!
希少な路面の居抜き物件です!
-------------------
25坪以下の"居抜き""店舗物件""賃貸マンション""分譲マンション"
オンラインで物件探しなら
"ミセカリ"で♪
【ミセカリ】
東京都目黒区目黒1丁目-24 オリックスビル2F
03-6417-9236
-------------------
![]()
物件へのお問い合わせ



































